![]() |
|
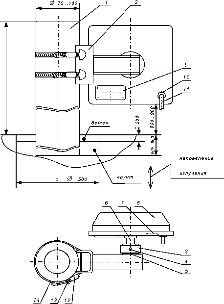
Главная страница Извещатель [0] [1] [2] [3] [4] [5] [6] [7] [8] [9] [10] [ 11 ] [12] ![]() 1 - труба, 1 шт.; 2 - кронштейн, 1 шт.; 3 - гайка, 1 шт.; 4 - винт М4, 1 шт.; 5 - фланец, 1 шт.; 6 - шарнир, 1 шт.; 7 - основание, 1 шт.; 8 - кожух, 1 шт.; 9 - крышка, 1 шт.; 10 - кабельный ввод, 1 шт.; 11 - кабель, 1 шт.; 12 - замок, 2 шт.; 13 - винт, 2 шт.; 14 - стяжка , 2 шт. Рисунок А.1 - Внешний вид блока ПРМ Приложение А (обязательное) Внешний вид блока ПРМ ![]() :3 - индикатор ОХР" 4 - индикатор "РЕЖИМ" 5 - регулятор "Чувствительность* 6 - кнопка несанкционированного вскрытия *ВСК 7 - гнездо контрольное КГ" 8 - кнопка РЕЖИМ Рисунок А.2 - Внешний вид органов управления ПРМ Приложение Б (справочное) ![]() Рисунок Б.1 - Зона обнаружения извещателя (дальность действия 300 м)
L - дальность действия извещателя от 10 до 300 м Рисунок Б.2 - Конфигурация и размеры участка, подготавливаемого для установки извеща- теля в зависимости от дальности действия [0] [1] [2] [3] [4] [5] [6] [7] [8] [9] [10] [ 11 ] [12] 0.0128 |
|||||||||||||||